Dom na sprzedaż Grabówka (gw), Zaścianki

4 pokoje
136.80 m²
5 774,85 zł/m2
NKO-DS-3471

790 000 zł

Dom na sprzedaż
Nowa oferta

Szczegóły oferty

Symbol oferty NKO-DS-3471
Powierzchnia 136,80 m²
Powierzchnia użytkowa [m2] 106,10 m²
Powierzchnia działki [m2] 255 m²
Liczba pokoi 4
Liczba sypialni 3
Rodzaj domu segment skrajny
Standard
Liczba pięter w budynku 1
Garaż garaż
Okna PCV
Instalacje ELEKTRYCZNA, GAZOWA, TELEFONICZNA, INTERNETOWA
Balkon taras
Liczba tarasów 1
Zagosp. działki zagospodarowana
Ukształtowanie działki płaska
Kształt działki prostokąt
Pokrycie dachu papa termozgrzewalna
Stan budynku do wykończenia
Ogrodzenie działki ogrodzona
Rok budowy 2025
Gaz jest
Woda ciepła - piecyk gazowy
Ogrzewanie C.O. GAZOWE
Umeblowanie nieumeblowane
Prąd jest
Kanalizacja miejska
Pomieszczenia
Typ kuchni aneks kuchenny połączony z jadalnią i salonem
Rodzaj kuchni aneks kuchenny - połączony z salonem
Typ łazienki razem z wc
Liczba łazienek 2
Andrzej Kazberuk

Andrzej Kazberuk

Pośrednik w obrocie nieruchomościami licencja PFRN nr 22326

Napisz wiadomość 27 Ofert

Opis nieruchomości

Kupujący nie płaci wynagrodzenia biura nieruchomości, wynagrodzenie biura pokrywa sprzedający!


Poszukujesz domu w zabudowie szeregowej położonego w bliskiej odległości od Białegostoku w kameralnej, zacisznej lokalizacji? Dobrze trafiłeś ta oferta spełni Twoje oczekiwania!

Polecam do sprzedaży domy zabudowie szeregowej w Zaściankach. o powierzchni użytkowej od 101,1  m kw. do 106,1 m kw.  i całkowitej od 131 m kw. do 136,8 m kw. Działki o powierzchniach od 147 m kw. do 255 m kw. Ogródki o powierzchniach około 30-35 m kw.
Podstawowe materiały użyte do budowy domów: Suporex Termobet, pustak, beton komórkowy. 

W cenie domu pełna instalacja elektryczna i wodno-kanalizacyjna, internetowa( światłowód KOBA) oraz ogrzewanie  podłogowe dwu strefowe( góra dół) wraz z kotłem( piec 2 funkcyjny Junkers). Możliwość instalacji kominków. Dach kryty papą termozgrzewalną, okna PCV 3-komorowe. 
Docieplenie styropian - elewacja 15 cm garaż 8 cm. Tynk elewacyjny silikonowy, spiek ozdobny. W cenie domów ułożenie kostki polbruk, wyłożenie tarasu,  ogrodzenie z panelu metalowego. Istnieje możliwość instalacji kominków!

Osiedle położone jest w spokojnej kameralnej części Zaścianek W pobliżu: sklep Biedronka, Chorten i inne, stacja benzynowa ORLEN . Bliskie sąsiedztwo stawów hodowlanych. Plaża miejska Dojlidy w odległości ok 1,8 km.

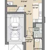
Parter obejmuje: salon z kuchnią, wc, garderobę oraz garaż. Na piętrach znajdują się  trzy lub cztery pokoje z garderobami z łazienką. Układ pomieszczeń i ścianki działowe są wykonywane wg życzenia Kupującego na etapie budowy stanu surowego otwartego.



OPIS Segmentu 1I którego dotyczy ogłoszenie:
działka narożna o powierzchni 255 m kw.


Powierzchnia całkowita 136,8 m kw. wraz z garażem( 15,3 M KW.) Użytkowa 106,1 m kw.

Parter:
Salon z jadalnią,  kuchnią i wyjściem na taras (10,3 m kw.), wiatrołap, garderoba, toaleta, hol oraz garaż.

Piętro:
 trzy pokoje, korytarz, garderoba oraz duża łazienka z wc. 

SEGMENT 2K POWIERZCHNIA CAŁKOWITA​:  136,8 m2, ​POWIERZCHNIA UŻYTKOWA - 106,1 m2 ,    GARAŻ - 15,3 m2,  POWIERZCHNIA DZIAŁKI - 243 m2, CENA: 780 000 zł 

Termin orientacyjny oddania domów do użytku Dom 1I,2I,1J,2J,1K, 2K/-  GRUDZIEŃ 2026. 
Termin orientacyjny do którego nastąpi przeniesienie prawa własności nieruchomości: LUTY 2027.

Ta  ładna szeregówka zaprojektowana z dbałością o szczegóły i wykonana z dobrej jakości materiałów może być Twoja!
Nie czekaj umów się na bezpłatną prezentację

Kupujący nie płaci wynagrodzenia Pośrednika, wynagrodzenie pośrednika pokrywa Developer.
Kupujący zwolniony jest z podatku PCC 2% 


Podany opis ma charakter wyłącznie informacyjny i nie stanowi oferty w rozumieniu art. 66 Kodeksu Cywilnego oraz innych właściwych przepisów prawnych. Wszelkie dane dotyczące nieruchomości uzyskano na podstawie oświadczeń sprzedających. Zalecamy osobiste zapoznanie się ze stanem faktycznym nieruchomości przed jej nabyciem.

Podobne oferty

Dom na sprzedaż

Grabówka (gw), Zaścianki

4 pokoje 126 m2 5 414,01 zł/m2
Nowa oferta

Dom na sprzedaż

Grabówka (gw), Zaścianki

4 pokoje 131 m2 5 458,02 zł/m2
Nowa oferta

Pośrednik w obrocie nieruchomościami licencja PFRN nr 22326

Proszę wprowadzić poprawne imię i nazwisko
Proszę wprowadzić poprawny numer telefonu
Proszę wprowadzić poprawny adres e-mail
Proszę zaznaczyć wymagane zgody
Rozwiąż równanie:
24 4
Niepoprawny wynik