Dom na sprzedaż Juchnowiec Kościelny, Olmonty

5 pokoi
141.00 m²
6 000,00 zł/m2
NKO-DS-3454

846 000 zł

Dom na sprzedaż
Nowa oferta

Szczegóły oferty

Symbol oferty NKO-DS-3454
Powierzchnia 141,00 m²
Powierzchnia działki [m2] 297 m²
Liczba pokoi 5
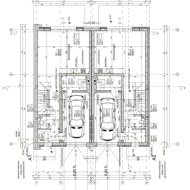
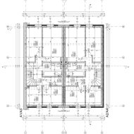
Rodzaj domu bliźniak
Technologia budowlana cegła
Liczba pięter w budynku 1
Wymiary działki 9,80 x 30,37 m
Garaż w bryle
Okna PCV 3 szyby, ciepły montaż
Instalacje ELEKTRYCZNA, WODNA, GAZOWA
Balkon Barierka
Liczba balkonów 1
Liczba tarasów 1
Zagosp. działki częściowo zagospodarowana
Ukształtowanie działki płaska
Kształt działki prostokąt
Pokrycie dachu blacha panelowa
Pozwolenie na użytkowanie tak
Stan budynku do wykończenia
Ogrodzenie działki częściowo ogrodzona
Rok budowy 2025
Gaz jest
Woda jest
Dojazd droga utwardzona
Otoczenie las
Ogrzewanie C.O. GAZOWE
Tarasy taras
Prąd jest
Kanalizacja tak
Pomieszczenia
Typ kuchni aneks kuchenny połączony z jadalnią i salonem
Rodzaj kuchni aneks kuchenny - połączony z jadalnią
Liczba łazienek 1
Liczba WC 1
Urszula Łukaszewicz

Urszula Łukaszewicz

Pośrednik w obrocie nieruchomościami

Napisz wiadomość 19 Ofert

Opis nieruchomości

Zapraszam do zapoznania się z ofertą sprzedaży domu w zabudowie bliźniaczej w stanie deweloperskim znajdującego się w Olmontach przy ul. Miłej, gmina Juchnowiec Kościeny.  
Nieruchomość o powierzchni 141 m2 składa się z 5 pokoi, posadowiona jest na działce o powierzchni 297 m2.

Bliźniak A3 - dostępny, wielkość działki około 297 m2
Bliźniak A4 - dostępny, wielkość działki około 297 m2
Bliźniak A5 - dostępny, wielkość działki około 297 m2
Bliźniak A6 - dostępny, wielkość działki około 450 m2

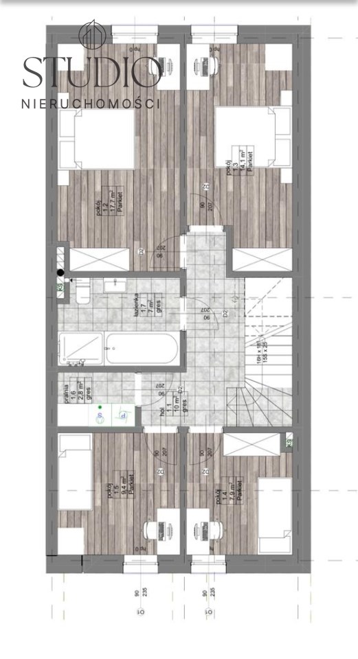
Nieruchomość składa się z:
 
Parter
- kuchnia z salonem i wyjściej na taras
- korytarz 
- WC 
- pomieszczenie gospodarcze
- wiatrołap
- garaż wraz z kotłownią 

Pierwsze piętro
- 4 pokoje 
- łazienka
- pralnia
- korytarz.

Najważniejsze atuty:

  • doskonała lokalizacja - miejscowość Olmonty to spokojne i lubiane miejsce, położone z dala od zgiełku, 3 km od granic Białegostoku i 5 km od dzielnicy Dojlidy. Bliska odległość lasu gwarantuje wspaniałe warunki do wypoczynku, spacerów i wycieczek rowerowych,
  • budynek wykończony dobrymi materiałami - cegła ceramiczna Wienerberger, okna plastikowe, 3-szybowe -  Salamander, dachówka - blacha płaska prosta T panel mat grafit, zamontowany piec gazowy
  • nieruchmość oddana do użykowania,
  • wszystkie media - woda, kanalizacja (miejskie), prąd, gaz, światłowód dostępny w ulicy,
  • kupujący nie płaci PCC. 
Dom sprzedawany w stanie deweloperskim:

- ogrzewanie podłogowe w całym domu wraz z wylanymi posadzkami 
- dodatkowe dwa grzejniki (łazienka, garaż)
- gładkie tynki wewnętrzne (Kanuf MP 75), gotowe do przetarcia i malowania lub do ponownego szpachlowania 
- instalacja elektryczna, hydauliczna i internetowa oraz instalacja do bramy wjazdowej i domofonu
- zamontowane gniazdka, włączniki oraz TV i internet
- docieplenie strychu - wełna mineralna 20 cm zamknięta od góry płytą OSB 22
- wykończona, ładna elewacja - tynk silikonowy Caparol wraz z grafitową, 20 cm izolacją
- piec gazowy
- ogrodzenie oddzielące bliźniaki (brak ogrodzenia od frontu).

Nieruchomość gotowa do odbioru.

Oferta dostępna tylko w naszym biurze.  

Zapraszam do oglądania.
Urszula Łukaszewicz
787 635 987

Lokalizacja nieruchomości

Pośrednik w obrocie nieruchomościami

Proszę wprowadzić poprawne imię i nazwisko
Proszę wprowadzić poprawny numer telefonu
Proszę wprowadzić poprawny adres e-mail
Proszę zaznaczyć wymagane zgody
Rozwiąż równanie:
24 1
Niepoprawny wynik