Działka na sprzedaż Grabówka (gw), Sobolewo

5506.00 m²
220,00 zł/m2
NKO-GS-3460

1 211 320 zł

Działka na sprzedaż
Oferta na wyłączność

Szczegóły oferty

Symbol oferty NKO-GS-3460
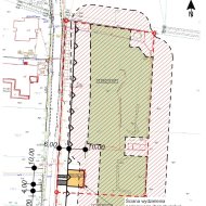
Powierzchnia 5 506,00 m²
Przeznaczenie działki leśna, rolna
Wymiary działki 103x54 m
Zagosp. działki zagospodarowana
Ukształtowanie działki płaska
Kształt działki prostokąt
Ogrodzenie działki metalowe
Andrzej Kazberuk

Andrzej Kazberuk

Pośrednik w obrocie nieruchomościami licencja PFRN nr 22326

Napisz wiadomość 23 Ofert

Opis nieruchomości

Oferta Premium - kupujący nie płaci wynagrodzenia pośrednika, wynagrodzenie pośrednika pokrywa właściciel nieruchomości 


Twoja Oaza Spokoju w Dynamicznie Rozwijającym się Sobolewie!


Wyjątkowa okazja inwestycyjna w nowej gminie Grabówka - przestrzeń, natura i nieograniczone możliwości!
Wyobraź sobie miejsce, gdzie cisza natury spotyka się z doskonałą lokalizacją i świetnymi perspektywami rozwoju. Ta niezwykła działka o powierzchni około 5506 m² przy ulicy Niedźwiedziej w Sobolewie to właśnie taka perła czekająca na swojego nowego właściciela!


Lokalizacja z Potencjałem

Nieruchomość położona jest w Sobolewie - dynamicznie rozwijającej się miejscowości, która od 1 stycznia 2025 roku chodzi w skład nowo utworzonej gminy Grabówka. To historyczna zmiana, która otwiera przed mieszkańcami zupełnie nowe możliwości rozwoju i inwestycji!

Doskonałe położenie:
Zaledwie 8 km od centrum Białegostoku - kwadrans jazdy samochodem.
Bezpośredni dostęp do drogi krajowej nr 65 (Szosa Baranowicka) 500 metrów do przystanku autobusowego linii 105 BKM
Regularne połączenia z Białymstokiem (autobus co godzinę w godzinach szczytu)

Budynki i Infrastruktura
Na  działce znajduje się spory staw o powierzchni około 900m2 z dwoma drewnianymi mostkami. Przy stawie zlokalizowana jest kamienna grillowania z zadaszeniem oraz drewniany budynek jednokondygnacyjny  o funkcji mieszkalnej I pow. zabudowy 51 m2. W okolicy stawu znajduje się także budynek gospodarczy jednokondygnacyjny konstrukcji drewnianej pow. zabudowy 27m2.

Uzbrojenie terenu:

* Energia elektryczna
* Wodociąg
* Dostęp do kanalizacji tylko w części ul. Niedźwiedziej do ul Kanarkowej  (około 280m od działki)
* Możliwość przyłączenia gazu
* Dojazd utwardzoną drogą gruntową

Rajski Ogród Gotowy do Zamieszkania
Działka to prawdziwy botaniczny skarb! Zasadzone z miłością i pietyzmem:
Liczne drzewa ( działka częściowo leśna)  zapewniające naturalny cień
- Wiecznie zielone świerki i sosny oraz brzozy


Możliwości Zabudowy i Rozwoju
Zgodnie ze Studium Uwarunkowań i Kierunków Zagospodarowania Przestrzennego, działka znajduje się w strefie
MN2 - zabudowy mieszkaniowej jednorodzinnej o średniej intensywności.
Od stycznia 2026r Studium Uwarunkowań straci ważność, na działkę zostały złożone warunki zabudowy (zabudowa jednorodzinna) na podstawie których działka zostanie wydzielona z działki 718/1. Został też złożony wniosek do Planu Ogólnego o ujęcie w przygotowywanym Planie Ogólnym tego terenu jako zabudowy jednorodzinnej.

Wszystko w Zasięgu Ręki

Edukacja i rozwój:
-1,5 km do nowoczesnej, rozbudowanej w 2023 roku Szkoły Podstawowej im. Elizy Orzeszkowej
- Przedszkole Samorządowe w Sobolewie (otwarty w 2023 roku)
- Żłobek Samorządowy w Sobolewie (od 2022 roku)
- Skatepark i Pumptrack naprzeciwko szkoły - raj dla aktywnych dzieci!

Codzienne potrzeby:
- 1,5 km do sklepu spożywczego
- Pełna infrastruktura handlowo-usługowa w pobliskim Białymstoku
- Szybki dostęp do centrum handlowego i wszystkich udogodnień miejskich

 Dlaczego Warto?
-Nowa Gmina - Nowe Możliwości! Grabówka to jedna z najbogatszych gmin wiejskich w województwie podlaskim z budżetem 78,6 mln zł na 2025 rok - dwukrotnie wyższym niż średnia! To gwarancja dynamicznego rozwoju infrastruktury i wzrostu wartości nieruchomości.

Idealne dla:
- Rodzin szukających przestrzeni i kontaktu z naturą
- Inwestorów dostrzegających potencjał rozwojowy okolicy
- Miłośników ciszy i spokoju z szybkim dostępem do miasta

Inwestycja w Przyszłość
Ta nieruchomość to nie tylko działka - to bilet do lepszego życia! Połączenie wiejskiego spokoju z miejskimi udogodnieniami, przepięknej natury z doskonałą komunikacją, oraz historii z nowoczesnością.
W ciągu ostatnich lat liczba mieszkańców Sobolewa wzrosła o ponad 150% - to dowód na atrakcyjność tej lokalizacji!

Nie Czekaj - Ta Okazja Szybko Zniknie!
Działki w tak atrakcyjnych lokalizacjach, z pełnym uzbrojeniem i możliwościami zabudowy to prawdziwa rzadkość na rynku. Szczególnie teraz, gdy nowa gmina Grabówka rozpoczyna swoją działalność z imponującym budżetem i ambitnymi planami rozwoju.

Uwaga! Na działkę zostały złożone wnioski na warunki zabudowy jednorodzinnej, po otrzymaniu prawomocnych WZ na ich podstawie działka zostanie wydzielona. Przybliżony termin gotowości do sprzedaży maj/czerwiec 2026r. 



Zadzwoń już dziś i umów się na prezentację tej wyjątkowej nieruchomości!

Oferta z klauzulą wyłączności.
 

opiekun oferty:

Andrzej Kazberuk
nr Licencji PFRN 22326
TEL. 794 431 881




Podany opis ma charakter wyłącznie informacyjny i nie stanowi oferty w rozumieniu art. 66 Kodeksu Cywilnego oraz innych właściwych przepisów prawnych. Wszelkie dane dotyczące nieruchomości uzyskano na podstawie oświadczeń sprzedających. Zalecamy osobiste zapoznanie się ze stanem faktycznym nieruchomości przed jej nabyciem.

Pośrednik w obrocie nieruchomościami licencja PFRN nr 22326

Proszę wprowadzić poprawne imię i nazwisko
Proszę wprowadzić poprawny numer telefonu
Proszę wprowadzić poprawny adres e-mail
Proszę zaznaczyć wymagane zgody
Rozwiąż równanie:
16 5
Niepoprawny wynik